Appartement
au pied des pistes
à Bisanne 1500

Résidence “Les balcons du Mont-Blanc”
Bisanne 1500 - Les Saisies





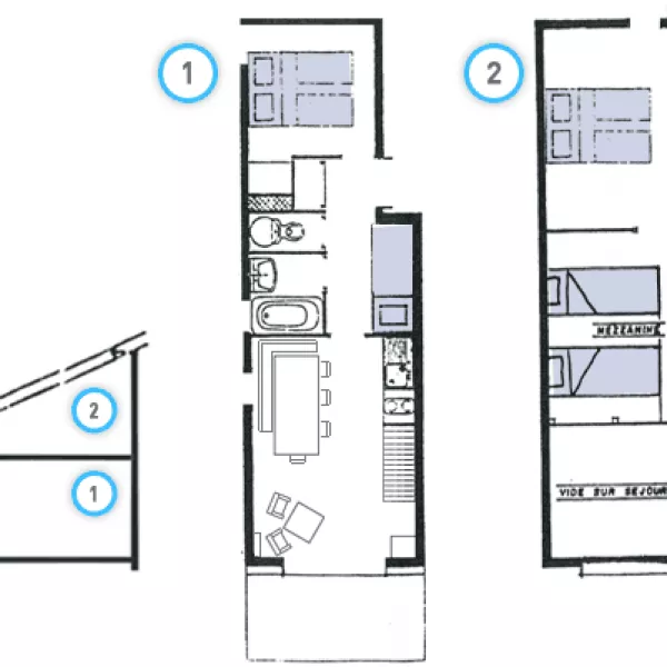
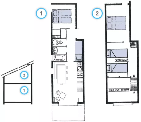
Appartement Duplex
Meublé pour 6-7 personnes

L'appartement

Appartement 6- 7 personnes

    • Appartement 6-7 personnes au pied des pistes, avec vue dégagée sur le mont-Blanc et la vallée de Beaufort.

      Situé sur Bisanne 1500, domaine skiable des saisies, devant la nouvelle télécabine des Rosières.

      Appartement avec mezzanine ouverte sur le salon

      - Surface d'environ 50 m²

      - 2 chambres avec lit 2 places de 140.

      - 2 couchages sur la mezzanine 

      - 1 lit en hauteur dans le couloir 

      - Salle de bain avec baignoire

      - Balcon avec vue sur le Mont-blanc

      - Cuisine équipée avec frigo + four + 4 plaques vitro+ lave vaisselle

      - cafetière, bouilloire, appareil à raclette

      - Box de garage en sous-sol

      - Départ et retour ski aux pieds, casier à ski privatif.

      - A proximité immédiate : Alimentation, restaurants, location skis, 

      - Caisse forfait, remontée mécanique et départ ESF Bisanne 1500 devant l'immeuble.

    • Draps et serviettes non fournis (Possibilité de location via commerce sur place)

      Ménage à la charge du locataire.(nécessaire à dispo à l'appartement).

  • Location du samedi au samedi
Disponibilités et réservations

domaine skiable

Les Saisies

Accédez au pied de l’appartement au domaine skiable des Saisies, 192 km de pistes de l’espace Diamant. Entre ski alpin, ski nordique et une foule d’activités pour toute la famille, chacun trouve son bonheur aux Saisies.

En hiver, les Saisies profitent d'un enneigement exceptionnel et d'un ensoleillement généreux. Bénéficiant d'un domaine de ski alpin et d'un domaine de ski nordique de qualités, cette station propose aux vacanciers de multiples possibilités de glisse et d'activités (Motoneige, parapente, raquettes etc...).Nombreuses randonnées en raquettes sont possibles depuis l’appartement.

Toutes les informations sur le domaine skiable :  www.lessaisies.com

La station

Bisanne 1500

Aux alentours de l'appartement dans un cadre arboré, orientée plein sud à 1500m d’altitude, la station de Bisanne 1500 offre un panorama grandiose sur le Beaufortain et le Mont-Blanc.

A seulement 6km des Saisies et 10km du village de Villard sur Doron, elle est desservie directement par la télécabine des Rosières et la piste bleue du Planay. Des navettes gratuites vous permettent également de rejoindre Les Saisies l’été et l’hiver.

https://villardsurdoron.com/bisanne-1500/

Services à Bisanne 1500 :

  • Bar et restaurants au pied de l'immeuble

  • Location de skis au pied de l'immeuble

  • Caisse d'achat de forfaits

  • Epicerie, multiservices, traiteur.

  • Navette gratuite avec Les saisies.

  • Station de recharge pour véhicules électriques.

Disponibilités

Réservation

Tarifs / semaine

  • Basse saison été :
    500€

  • Basse saison Hiver :
    700€

  • Haute saison (vacances scolaires) :
    1100 - 1400€

Tarifs hors taxe de séjour, calculée en fonction du nombre d'occupants

Nous contacter


Télécharger notre contrat de location pour réservation